top of page

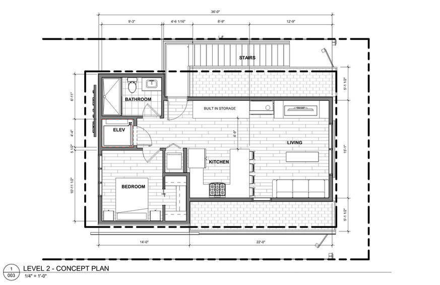
Downing St. - Accessory Dwelling Unit

Cap Hill Neighborhood - Denver, CO


1 Bed / 1 Bath / 3 Car Garage : 1,512 sqft

Partners in Design or Construction:

ADU4U - Owners Rep

Status:

Built

bottom of page